Warszawa, Mokotów, Sadyba

Mieszkanie na sprzedaż

Opis nieruchomości

Cichy i przestronny apartament o pow. 60 m2 z dużym balkonem, dwiema komórkami lokatorskim i miejscem garażowym. Nieruchomość położona na Dolnym Mokotowie w sąsiedztwie galerii handlowej Sadyba Best Mall. Zaledwie 8 min. samochodem do Parku w Wilanowie i do Łazienek Królewskich.
  • Mieszkanie składa się z 2 pokoi i kuchni otwartej na salon, ale w łatwy sposób można przywrócić oryginalny rozkład i uzyskać 3 pokoje.  
  • Apartament jest narożny, położony na 6. piętrze, okna skierowane na zielone osiedle i panoramę Warszawy (widok na Centrum)
  • Budynek z 2008 roku, z wewnętrznym patio, monitoringiem i ochroną. 
  • Bardzo zadbana klatka schodowa, 2 nowoczesne windy i tylko 3 lokale na piętrze.

MIESZKANIE:
Wysokie (2,76 m), wspaniale doświetlone i funkcjonalnie zaprojektowane wnętrze. Na podłogach znajduje się piękny, bardzo zadbany parkiet.
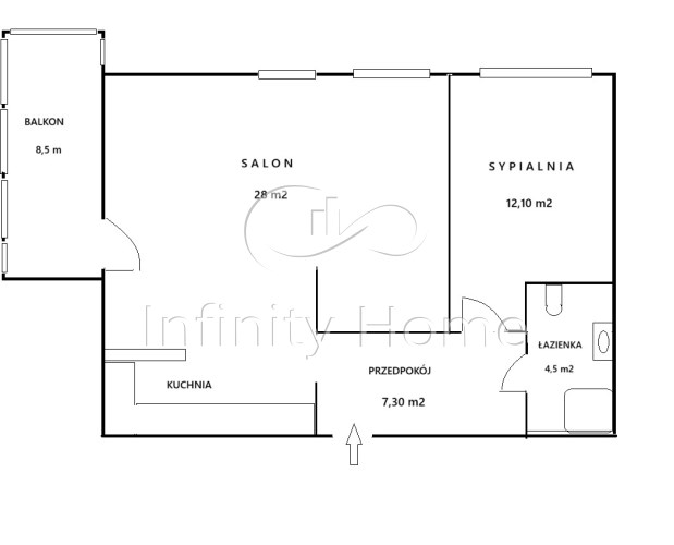
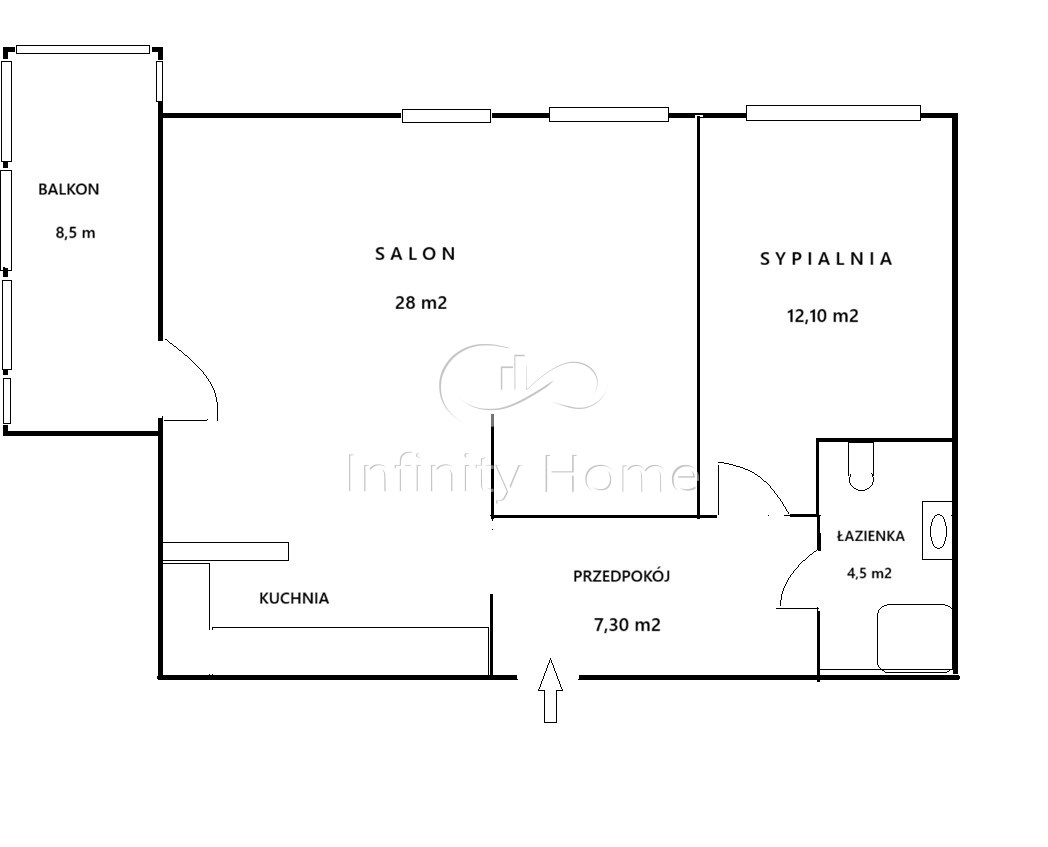
Mieszkanie o łącznej powierzchni 59,9 m2 składa się z:
- przestronnego salonu o pow. 28 m2, podzielonego na dwie części: jadalnię i strefę wypoczynkową
- kuchni o pow. 9 m2, częściowo otwarta na salon, z dużą ilością miejsca do przechowywania
- cichej i jasnej sypialni o pow. 12,5 m2 z przestronną szafą i szerokim łóżkiem
- wygodnej łazienki wyposażonej w kabinę prysznicową, wc, bidet i umywalkę
- przestronnego przedpokoju o pow. 7 m2 z dużą szafą i komodą
- przeszklonego balkonu o pow. 8,5 m2, obecnie zaaranżowanego na dodatkowe pomieszczenie.
Do mieszkania przynależą dwie komórki lokatorskie o powierzchni ok. 4,5 m2 i 4 m2
Dodatkowo dostępne jest miejsce postojowe w garażu podziemnym - cena 60 000 zł.

KOMUNIKACJA:
- przystanek autobusowy przy budynku (2 min. spacerem)
- nowa linia tramwajowa w stronę Centrum i Wilanowa (5 min. spacerem)
- wygodny dojazd samochodem do obwodnicy Warszawy i trasy S2

OKOLICA:
- zielona i bezpieczna dzielnica z pełną infrastrukturą osiedlową: sklepy, punkty usługowe, szkoły, przedszkola i żłobek. Idealne miejsce dla osób ceniących spokój i wygodę miejskiego życia.
- tereny rekreacyjne m.in plaża nad Jeziorkiem Czerniakowskim, park Dygata, ścieżki rowerowe w stronę Wisły, Wilanowa i Powsina
- bezpośrednie sąsiedztwo galerii handlowej z kinem, sklepami i restauracjami
- szkoły międzynarodowe - The British School oraz Lycee Francais de Varsovie. 

Zapraszam serdecznie na prezentację mieszkania

Nota prawna

Opis oferty zawarty na stronie internetowej sporządzany jest na podstawie oględzin nieruchomości oraz informacji uzyskanych od właściciela, może podlegać aktualizacji i nie stanowi oferty określonej w art. 66 i następnych K.C.

Szczegóły oferty

Symbol oferty IFY-MS-1571
Powierzchnia 60,00 m²
Powierzchnia balkonów/tarasów 8,50 m²
Liczba pokoi 2
Piętro 6
Rodzaj budynku apartamentowiec
Technologia budowlana cegła
Standard
Liczba pięter w budynku 8
Garaż miejsce garażowe
Piwnica 6,00 m²
Stan lokalu do wprowadzenia
Stan prawny Odrębna własność lokalu
Instalacje ELEKTRYCZNA
Balkon duży
Liczba balkonów 1
Rok budowy 2008
Widok panorama miasta
Gaz brak
Woda ciepła - miejska
Otoczenie bloki
Ogrzewanie C.O. miejskie
Winda tak
Liczba wind 2
Usytuowanie narożne
Drzwi antywłamaniowe tak
Przystosowania dla niepełnosprawnych tak
Klucze tak

Pomieszczenia

Powierzchnia pokoi 12 +28 m2
Podłogi pokoi parkiet egzotyczny
Typ kuchni aneks kuchenny połączony z jadalnią i salonem
Rodzaj kuchni otwarta połączona z jadalnią
Powierzchnia kuchni 8 m2
Typ łazienki razem z wc
Liczba łazienek 1
Powierzchnia łazienki 4,5 m2
Wyposażenie łazienki bidet, kabina prysznicowa, pralka, umywalka, WC
Liczba przedpokoi 1
Powierzchnia przedpokoi 8,3 m2
Podłoga przedpokoi gres

Lokalizacja

Kalkulator kredytowy

PLN
%
Wysokość raty

Kalkulator kosztów

PLN
PLN
PLN
PLN
PLN
PLN
%
PLN
Podatek od czynności cywilno-prawnych
Taksa notarialna (opłata notarialna)
VAT od taksy notarialnej (opłaty notarialnej)
Wniosek do WKW
VAT od wniosku do WKW
Prowizja agencji nieruchomości
VAT od prowizji agencji nieruchomości
Wypisy aktu notarialnego - około
RAZEM (cena + opłaty)

Podobne oferty

rezerwacja
mieszkanie na sprzedaż - Warszawa, Ursynów, Stary Imielin

mieszkanie na sprzedaż

Warszawa, Ursynów, Stary Imielin
3 pokoje 71,00 m2 11 197,18 zł/m2
rezerwacja
mieszkanie na sprzedaż - Warszawa, Żoliborz, Stary Żoliborz

mieszkanie na sprzedaż

Warszawa, Żoliborz, Stary Żoliborz
1 pokój 34,15 m2 21 815,52 zł/m2
rezerwacja
mieszkanie na sprzedaż - Warszawa, Bielany, Piaski

mieszkanie na sprzedaż

Warszawa, Bielany, Piaski
3 pokoje 47,00 m2 17 553,19 zł/m2
mieszkanie na sprzedaż - Warszawa, Praga-Północ

mieszkanie na sprzedaż

Warszawa, Praga-Północ
1 pokój 32,00 m2 29 843,75 zł/m2

Napisz do nas

Proszę wypełnić to pole
Proszę wypełnić to pole
Proszę wypełnić to pole
Proszę wypełnić to pole
Trwa wysyłanie...

Ta strona wykorzystuje pliki cookies w celach statystycznych oraz w celu dostosowania naszych serwisów do indywidualnych potrzeb klientów. Zmiany ustawień dotyczących plików cookie można dokonać w dowolnej chwili modyfikując ustawienia przeglądarki. Korzystanie z tej strony bez zmian ustawień dotyczących cookies oznacza, że będą one zapisane w pamięci urządzenia.

rozumiem